Головна
Каталог
Котеджі
Готовий дуплекс в Вовчинцях площею 160м. кв. та ділянкою 3 соток.
Готовий дуплекс в Вовчинцях площею 160м. кв. та ділянкою 3 соток.
1 / 35
$140 000
$875/м²
ID
807296
Тип котеджу
Дуплекс
Кімнат
4
Поверховість
1
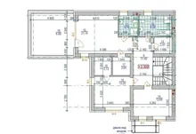
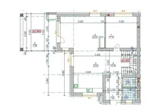
Площа
160.00м²
Ділянка
3.00сот
Площа кухні
23.00м²
Стан
Зданий сирець
Район
Вовчинець
Населений пункт
м. Івано-Франківськ
ОПИС
Продаж готового дуплексу в с. Вовчинець в одній із найкращих локації по тихій вулиці Патріарха Володимира. Площа будинку 160 м.кв Загальна площа земельної ділянки 3 сот. Міські комунікації – газ, електрика 10кВт, вода і каналізація. Два повноцінні поверхи, продумане сучасне планування. На першому поверсі розміщено кухня, яка обʼєднана з вітальнею площею 48 м.кв. з виходом на терасу де передбачена зона барбекю, окрема кімната, санвузол і паливна. На другому поверсі – три окремі кімнати, санвузол та комора. В батьківській спальні передбачено санвузол, гардероб і вихід на власну терасу площею 24 м.кв. Дах плоский. Будинок ззовні утеплений пінопластом 15 см та покритий декоративною штукатуркою. Внутрішні стіни поштукатурені пісчано цементною штукатуркою під маяки. Територія забрукована та огороджена Загальна площа 160 м² для втілення всіх ваших ідей про ідеальний дім. Земельна ділянка 2,3 сотки – простір для відпочинку, дитячих ігор чи облаштування зони барбекю. Окремий заїзд та власне подвірʼя, яке гарантує максимальну приватність і комфорт. Вид на річку, що дарує естетичну насолоду щодня. Жодних забудов перед будинком – лише природа, яка належить тільки вам. Технічні характеристики, які вражають якістю будівництва: • Надійний фундамент із блоків (ФБС) для довговічності. • Міцні стіни із кладкою у півтори цегли (товщина 380 мм). • Утеплений фасад пінополістиролом товщиною 10 см для енергоефективності. • Панельне перекриття для 1-го і 2-го поверхів. • Енергоефективні вікна із пʼятикамерного профілю з двокамерними склопакетами. • Метало-пластикові вхідні двері для додаткової безпеки. • Заведення електрики 7 кВт, що відповідає потребам сучасного побуту. • Часткове облаштування території бруківкою – естетика та зручність з першого погляду. Цей дуплекс – не просто будинок, це стиль життя: простір, приватність, природа та доступність усіх міських зручностей. Не відкладайте мрію на потім – телефонуйте сьогодні та переконайтеся, що це саме той дім, якого ви так довго шукали!
ЗВʼЯЗОК З МЕНЕДЖЕРОМ
Олег Клапків
+380 (50) 839 24 28