Головна
Каталог
Котеджі
Сучасний будинок в закритому ЖК поруч з Івано-Франківська
Сучасний будинок в закритому ЖК поруч з Івано-Франківська
1 / 10
$375 000
$1 500/м²
ID
617376
Тип котеджу
Будинок
Кімнат
4
Поверховість
1
Площа
250.00м²
Ділянка
8.00сот
Стан
Сирець
Район
Черніїв
Населений пункт
м. Івано-Франківськ
Забудовник
OZON Development
ОПИС
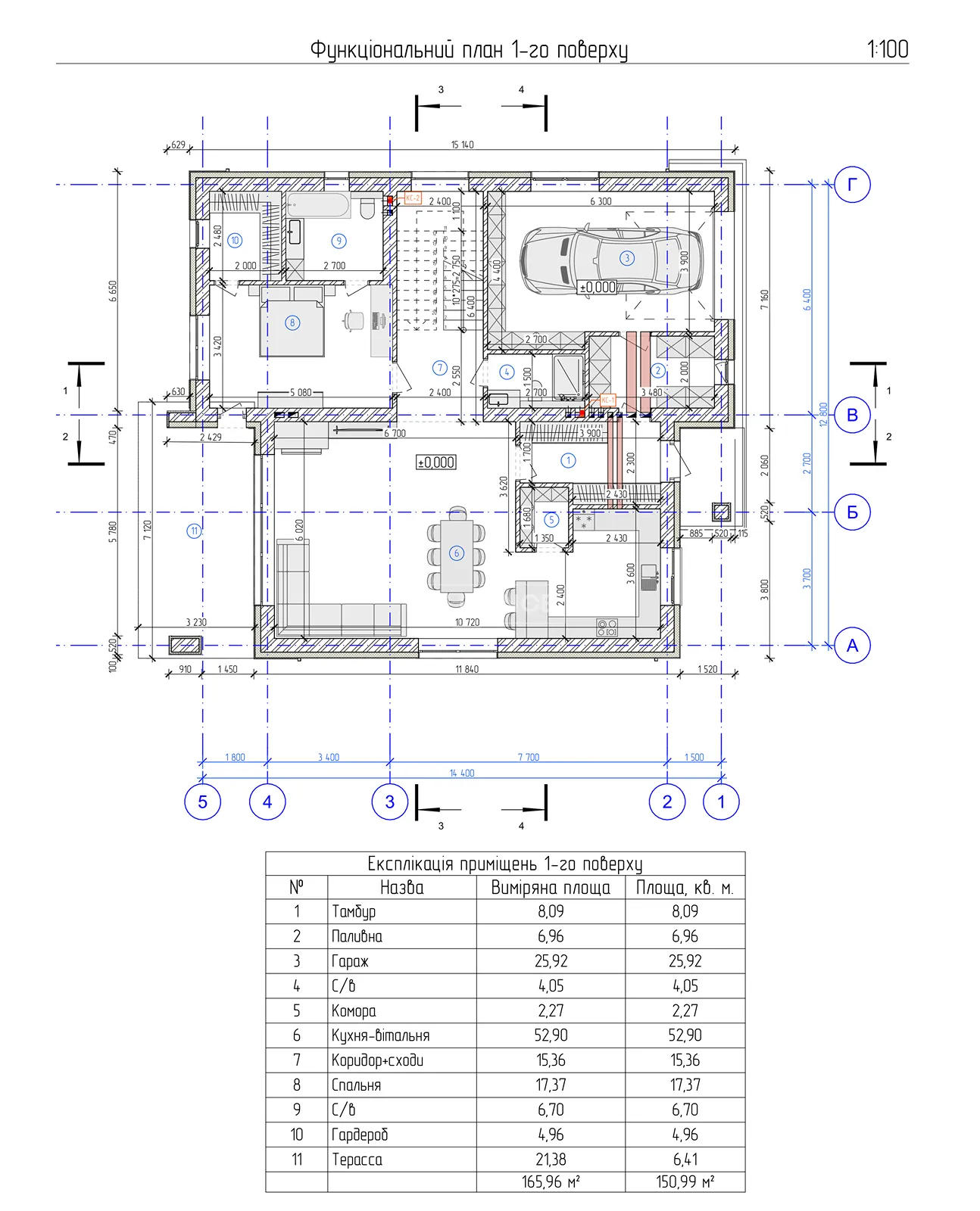
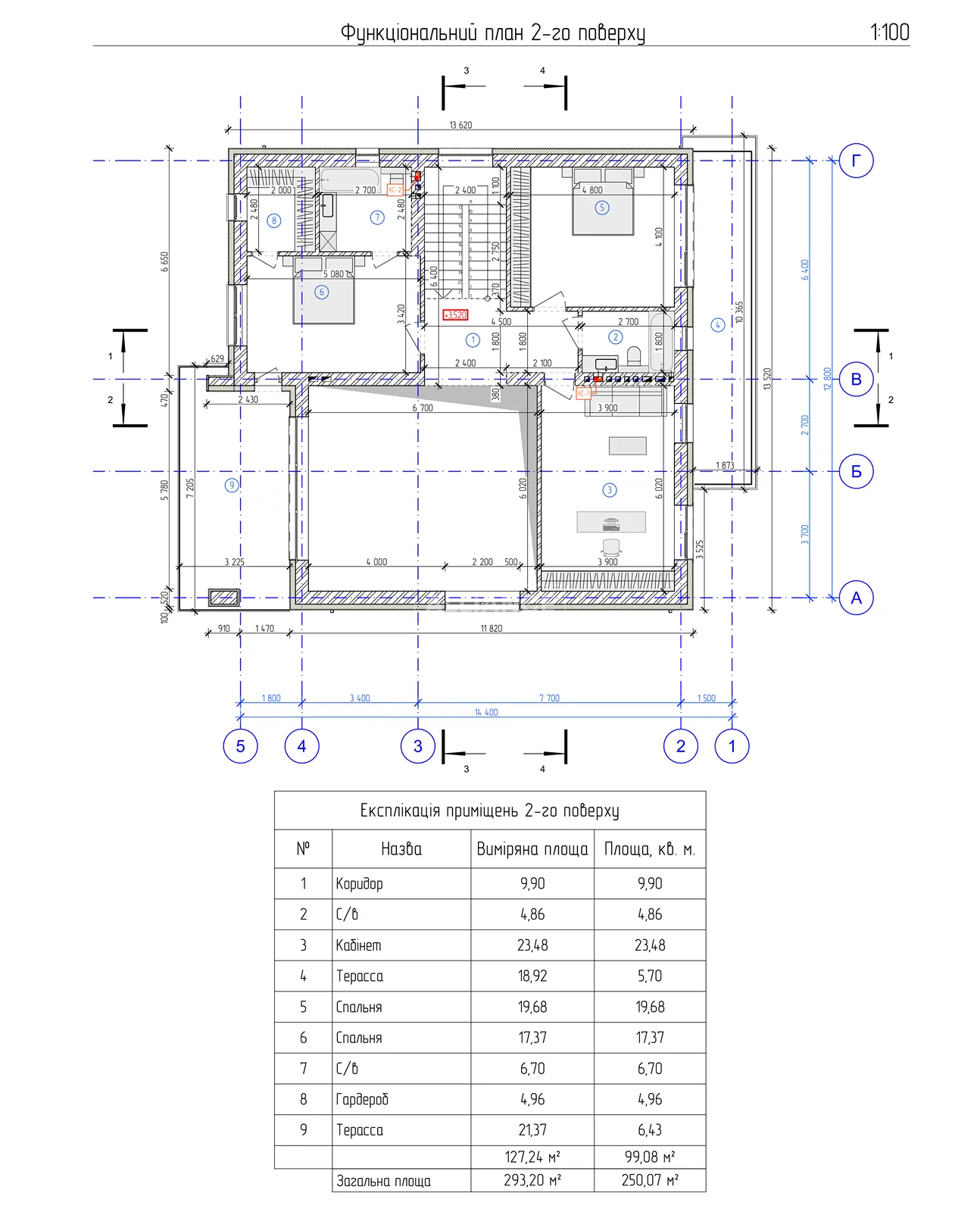
Продаж будинку 250 м² у котеджному комплексі OZON, Івано-Франківськ Пропонується сучасний двоповерховий будинок у закритому комплексі OZON. Комплекс малоповерховий, з єдиною архітектурою та впорядкованою територією. Без висотної забудови, спокійне оточення. Загальна площа будинку — 250 м². Планування На першому поверсі розташована простора кухня-вітальня 52,9 м² з виходом на терасу, гараж 25,9 м² з входом у будинок, окрема спальня, два санвузли, гардероб, паливна та комора. Перший рівень повністю функціональний — можна комфортно жити навіть без використання другого поверху. Другий поверх — приватна зона: дві спальні, великий кабінет (можна зробити ще одну спальню), два санвузли та дві тераси. Будинок має сучасну архітектуру з плоским дахом, панорамні вікна, великі тераси та вбудований гараж. Територія комплексу закрита, забудова однорідна, сусідство відповідного рівня. Формат 250 м² — оптимальний для сімʼї, яка хоче простір, окремі кімнати для кожного та зручне планування без зайвих метрів. За деталями телефонуйте. Перегляд можливий у зручний час.
ЗВʼЯЗОК З МЕНЕДЖЕРОМ
Іван Олексин
+380 (95) 827 55 23