Продаж котеджу в сучасному котеджному містечку
Пропонуються стильні котеджі за унікальним авторським проєктом відомого архітектора. Будівництво виконує надійний забудовник Закрита територія з власною управляючою компанією забезпечує комфорт і безпеку мешканців.
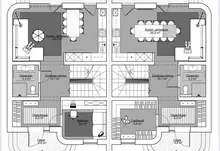
Є кілька різних планувань
Основні характеристики:
• Корисна площа будинку — 110 м²
• 38 м² — тераси та балкони
• Експлуатований дах — 90 м²
• Земельна ділянка — 3 сотки у приватній власності
• Накритий гараж (навіс) для автомобіля
• Внутрішнє закрите подвірʼя
• Підʼїзд до котеджів — бруківка
• Здача — кінець 2026 року (термін може змінюватися залежно від ходу будівництва)
Будівництво та матеріали:
• Стіни — цегла
• Утеплення — мінеральна вата
• Металопластикові вікна
• 6-камерний профіль
• 2-камерний енергозберігаючий склопакет
• Якісна німецька фурнітура
• Дах з мембранним покриттям
Комунікації:
• Індивідуальне газове опалення
• Централізоване водопостачання
• Централізована каналізація
• Підведений газ
• Електроенергія — 15 кВт виділеної потужності
Умови купівлі:
• Можливе розтермінування
• Перший внесок — від 10%
Ціна:
• 170 000 $ — при купівлі в розтермінування
• 165 000 $ — при 100% оплаті