Головна
Каталог
Котеджі
Дуплекс з великою ділянкою в центрі міста!
Дуплекс з великою ділянкою в центрі міста!
1 / 15
$155 000
$939/м²
ID
315933
Тип котеджу
Дуплекс
Кімнат
3
Поверховість
1
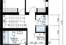
Площа
165м²
Ділянка
3.5сот
Площа кухні
35.5м²
Стан
На здачі
Район
Центр
Населений пункт
м. Івано-Франківськ
ОПИС
Продам цікавий дуплекс в центральній частині міста . 5 хв пішки до стометрівки! (фото для ознайомлення з готового обєкту) Сучасне планування з кухнею студією Тераса Великий задній двір ! Гараж Штукатурка Стяжка Утеплений фасад Утеплений дах! Якісні вікна та двері Будівництво розпочате. Можлива розстрочка до кінця року Всі комунікації міські Ідеальне розміщення відносно історичного центру та відсутні багатоповерхові будинки навколо Детальніше при огляді
ЗВʼЯЗОК З МЕНЕДЖЕРОМ
Василь Босак
+380 (50) 211 49 84