Головна
Каталог
Котеджі
Будинок з сучасним ремонтом під ключ в Крихівцях
Будинок з сучасним ремонтом під ключ в Крихівцях
1 / 50
$299 000
$1 634/м²
ID
200318
Тип котеджу
Будинок
Кімнат
4
Поверховість
1
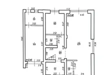
Площа
183.00м²
Ділянка
4.00сот
Площа кухні
44.00м²
Стан
Ремонт
Район
Крихівці
Населений пункт
с. Крихівці
ОПИС
Пропоную продаж приватного двоповерхового будинку з авторським ремонтом під ключ. Площа будинку: 185 м2 Площа земельної ділянки: 4 сотки. Всі міські мережі: – електрика 15 кВт( з можливістю збільшення потужності до 20кВт), 3 фази; – вода міська(централізована), також є криниця( можна використовувати для поливу або як технічну воду); – каналізація міська (централізована); – газ (індивідуальне газове опалення). Сучасний проект Будинок має два повноцінні поверхи, чотири окремі спальні кімнати, три санвузли, велику кухню - вітальню на 44 м2, дві гардеробні, а ще гараж та технічну кімнату. Отже: * на першому поверсі, велика кухня-вітальня., де кухонна робоча зона повністю облаштована меблями з мальованими фасадами з МДФ та якісною фурнітурою, а також уся необхідна побутова техніка (холодильник, варильна поверхня, духова шафа, мікрохвильова піч, витяжна система, посудомийна машина) Родзинкою кухні є прихована КОМОРА , яку переконаний оцінить господині, так як там можна буде зберігати дуже багато чого, від домашньої консервації до свіжих овочей та фруктів. Поруч з робочою зоною кухні маємо обідню зона, з столом та кріслами. Далі йде відпочинкова зоно, або зона вітальні: дизайнерський кутовий диван , камін, зона TV, великі панорамні вікна з виходом на подвіря. Також на першому поверсі маємо гостьову кімнату, або ж може бути кабінет. А ще санвузол та просторий коридор тамбур з шафою купе. Окремо з вулиці є просторий гараж з автоматичними воротами, та технічна кімната де встановлено котел, колектор теплої підлоги, блок системи охорони, електрощитова з автоматами , а також зроблені виводи для підключення пралки та сушки. * на другому поверсі: – три окремі кімнати (дві укомплектовані спальні, та одна без). Мастер спаленя має свій санвузол ,гардеробну та вихід на відкритий балкон. Також є просторий санвузол із ванною, інсталяцією та подвійним рукомийником. А ще гардеробна кімната З двох спалень є вихід на просторий відкритий балкон . Про територію: по периметру встановлений паркан з вуличною підсвіткою, від дороги встановленна відкидна брама, двір встелений бруківкою та газоном. Перед будинком є додаткова парковка на 2 авто. Будинок побудований з цегли, утеплений пінопластом найвищої щільності ,фасад оздоблений клінкерною плиткою, на даху зроблено утеплення та вкрито гідроізоляційною мембраною, що забезпечує чудову шумо та тепло ізоляцію та водоізоляцію і водночас є більш надійнішою в довговічності і процесу експлуатації. Опалення 24 кВт Конднсаційний котел(максимал
ЗВʼЯЗОК З МЕНЕДЖЕРОМ
Олег Клапків
+380 (50) 839 24 28