Головна
Каталог
Комерція
Продаж комерційного приміщення фасад на дорого ЖК Клубне 12
Продаж комерційного приміщення фасад на дорого ЖК Клубне 12
1 / 10
$190 400
$1 700/м²
ID
308618
Призначення
Вільне
Поверх
1
Поверховість
4
Потужність
15кВт
Площа
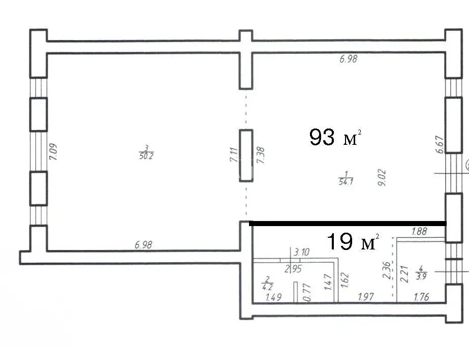
112.00м²
Стан
Зданий сирець
Район
Центр
Населений пункт
м. Івано-Франківськ
Забудовник
Вамбуд
Опалення
Електрика
ОПИС
Продаж комерційного приміщення на 1 поверсі вул. Крайківського (Біля піонерського парку) Пропонується до продажу просторе комерційне приміщення загальною площею 102 м², розташоване на 1 поверсі у активному та динамічному районі. Характеристики приміщення: • Просторе планування з можливістю зонування під будь-яку діяльність. • Великі панорамні вікна — ідеальна видимість, багато природного світла. • Висота стелі — 3 м, що забезпечує комфорт та функціональність. • Чудово підійде під: офіс, освітній центр, студії, шоурум, салон, фітнес/йога центр, IT-компанію, медичний центр тощо. Перевагою є в приміщення є два входи з можливістю розділити. Переваги локації: • Район з інтенсивним автомобільним та пішохідним трафіком. • Поруч зупинки транспорту, великі торгові центри, житлові комплекси. • Зручний підʼїзд та легка навігація для клієнтів.
ЗВʼЯЗОК З МЕНЕДЖЕРОМ
Петро Залуцький
+380 (96) 694 53 94