Головна
Каталог
Квартири
Здана, 1-кімнатна квартира ЖК River Park 2, 48,7м2
Здана, 1-кімнатна квартира ЖК River Park 2, 48,7м2
1 / 15
$43 500
$893/м²
ID
931695
Тип квартири
Новобудова
К-сть кімнат
1
Площа
48.70м²
Площа кухні
15.90м²
Поверх
5/10
Стан
Зданий сирець
Район
Пасічна
Вулиця
Галицька
Населений пункт
м. Івано-Франківськ
Забудовник
M Group Development
ЖК
River Park
ОПИС
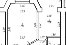
Продається простора 1-кімнатна квартира з чудовим краєвидом у ЖК «Рівер Парк 2» Будинок уже введений в експлуатацію та має присвоєну поштову адресу, можна оформляти свідоцтво на право власності. Характеристики квартири: • Комфортний 5 поверх • Загальна площа: 48,7 м² • Кухня-студія: 15,9 м² • Простора кімната: 21,6 м² • Ванна кімната: 4,2 м² • Санвузол: 1,8 м² Переваги комплексу: • Підключені ліфти • Підведені всі комунікації: вода, світло, інтернет, домофон • Будинок частково заселений (проживає понад 20 сімей, активно виконуються ремонти) • Закритий двір із високим рівнем безпеки • Висока якість будівництва • Район із розвиненою інфраструктурою: поруч магазини, зупинки транспорту, навчальні заклади Зацікавила квартира? Телефонуйте для детальнішої інформації та перегляду
МІТКА НА КАРТІ
ЗВʼЯЗОК З МЕНЕДЖЕРОМ
Євгеній Нікітін
+380 (50) 454 62 33