Головна
Каталог
Квартири
Продаж готової 1к квартири у ЖК Grand Hall в 8хв від центру міста
Продаж готової 1к квартири у ЖК Grand Hall в 8хв від центру міста
1 / 19
$29 500
$815/м²
ID
900397
Тип квартири
Новобудова
К-сть кімнат
1
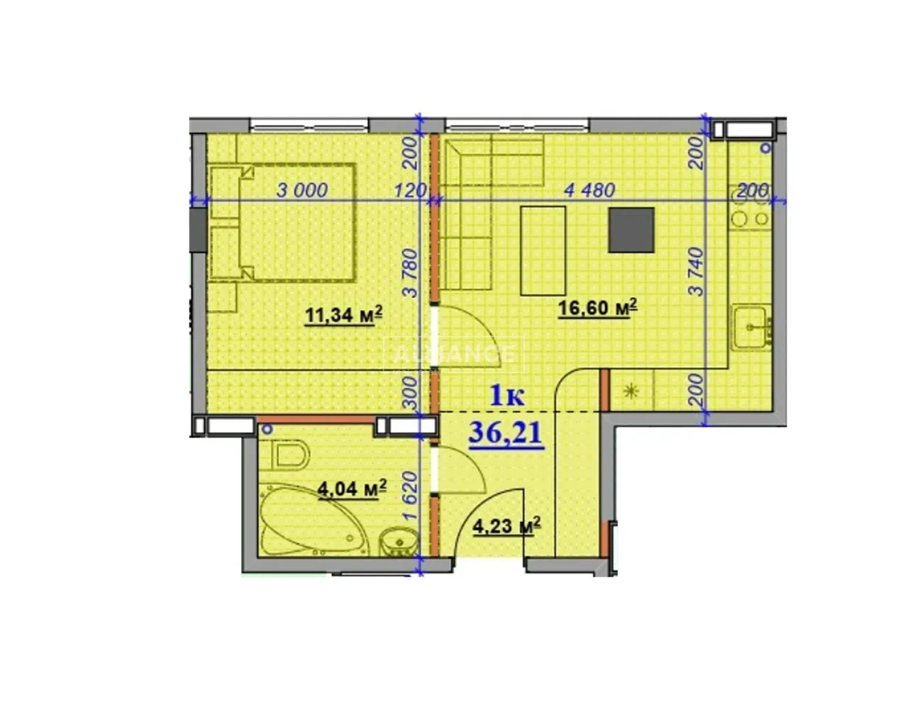
Площа
36.20м²
Площа кухні
17.00м²
Поверх
7/12
Стан
На здачі
Район
Пасічна
Вулиця
Целевича
Населений пункт
с. Вовчинець
Забудовник
IN WEST CITY
ЖК
Grand Hall
ОПИС
Продаж готової 1кім квартири з класним планування у ЖК Grand Hall в 8хв від центру міста - Загальна площа: 36,2 м² - Поверх: 7/12 У вартість квартири входить: -штукатурка стін по маяках. -зроблено теплу підлогу на кухні. -залита чистова напівсуха стяжка. -шестикамерні металопластикові вікна з потрійним склопакетом. -броньовані вхідні двері. -утеплення зовнішніх стін 15-ю пінопластом (плотність 35). -заведення всіх комунікацій та встановлення лічильників. Квартира внутрішня та тепла. Має простору кухню студію та спальню кімнату. ЖК має закриту територію., з внутрішнім двором та Торговим центром Автомобілем до площі Ринок в історичному центрі міста менш ніж 5 хвилин, Супермаркет «АТБ» знаходиться в 500 м від ЖК До набережної та парку Первоцвіт теж до 500м Поруч автобусна зупинка, школа, садочок, магазини. Ідеальний варіант під інвестицію за рахунок гарного вигляду з вікна та оптимальної площі. Зацікавило, телефонуйте, щоб дізнатися більше та домовитися про перегляд.
МІТКА НА КАРТІ
ЗВʼЯЗОК З МЕНЕДЖЕРОМ
Олег Клапків
+380 (50) 839 24 28