Головна
Каталог
Квартири
1 кімнатна квартира в центрі 3 поверх
1 кімнатна квартира в центрі 3 поверх
1 / 4
$32 000
$827/м²
ID
875109
Тип квартири
Новобудова
К-сть кімнат
1
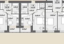
Площа
38.7м²
Поверх
3/15
Стан
Сирець
Район
Центр
Вулиця
Княгинин
Населений пункт
м. Івано-Франківськ
Забудовник
Спілка забудівників
ЖК
Княгинин
ОПИС
1 кімнатна квартира в центрі здача. Оптимальний 3 поверх. Цей житловий комплекс з ретельно продуманою інфраструктурою, транспортною розвʼязкою, функціональним зонуванням території з просторими майданчиками та хорошим плануванням квартир. Особливості: – відмінне сполучення з центральною частиною міста – підземний паркінг – поруч школа – сучасні дитячі майданчики – розвинена інфраструктура
МІТКА НА КАРТІ
ЗВʼЯЗОК З МЕНЕДЖЕРОМ
Андрій Боян
+380 (98) 039 50 11