Головна
Каталог
Квартири
Видова однокімнатна квартира за вигідною ціною
Видова однокімнатна квартира за вигідною ціною
ОБʼЄКТ НЕ АКТУАЛЬНИЙ
1 / 31
$67 500
$1 255/м²
ID
709817
Тип квартири
Новобудова
К-сть кімнат
1
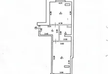
Площа
53.8м²
Площа кухні
17.7м²
Поверх
9/10
Стан
Ремонт
Район
Центр
Вулиця
Кисілевської
Населений пункт
м. Івано-Франківськ
Забудовник
Kontilium Group
ЖК
Затишний
ОПИС
Вітаю! Це унікальна квартира, створена для комфортного проживання. Адже щодня ви насолоджуватиметесь захопливими заходами сонця та затишком у власному просторі. Квартира розташована в зручній локації міста: • поруч магазин АТБ, кавʼярня, аптека, магазин «Чистенько» • житловий комплекс розташований на спокійній вуличці • швидкий доступ до центру міста — 5–10 хвилин до Стометрівки • за 5 хвилин ходьби — зупинка громадського транспорту на вулиці Незалежності • також неподалік — прогулянкова зона та річка Комплектація квартири та планування: • простора кухня площею 17 м², укомплектована технікою (холодильник, посудомийна машина, духова шафа, газова плита, витяжка) • санвузол продуманий до дрібниць: пральна машина Samsung, дзеркало з підсвіткою, шафа, тумба з умивальником, інсталяція, душова зона з поличками, сушка для білизни • у спальні є все необхідне для проживання: двоспальне ліжко, кондиціонер, велика шафа для речей, робоча зона та велике панорамне вікно з видом на захід сонця та місто • індивідуальне газове опалення, електрична тепла підлога з терморегуляторами, кондиціонер з функціями обігріву та охолодження Квартира ідеально підійде для власного проживання — тут ви відчуєте затишок і зручність локації. Огляньте квартиру вже зараз — не втрачайте можливість вигідного придбання!
МІТКА НА КАРТІ
ЗВʼЯЗОК З МЕНЕДЖЕРОМ
Василь Василишин
+380 (98) 410 60 96