Головна
Каталог
Квартири
2-кімнатна 78,8 м² • єОселя • без комісії • вул. Залізнична
2-кімнатна 78,8 м² • єОселя • без комісії • вул. Залізнична
1 / 4
$102 440
$1 300/м²
ID
435305
Тип квартири
Новобудова
К-сть кімнат
2
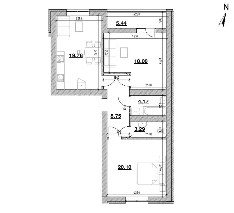
Площа
78.80м²
Площа кухні
19.78м²
Поверх
2/6
Стан
Зданий сирець
Район
Залізничний
Вулиця
Залізнична
Населений пункт
м. Львів
Забудовник
РІЕЛ
ЖК
Шенген
ОПИС
Продається простора 2-кімнатна квартира 78,8 м² у будинку комфорт-класу, вул. Залізнична, 9Б. Будинок зведений за цегляною та монолітно-каркасною технологією, стіни — цегла/керамоблок, утеплення — пінополістирол. Характеристики: Поверх: 2 із 6 Клас: комфорт Стан: без ремонту Опалення: автономне (в будинку) Матеріали: цегла, керамоблок Утеплення фасаду: пінополістирол Вартість: 1 300 $/м² Загальна ціна: 102 440 $ Є можливіть розтермінування: Перший внесок — від 30% Розтермінування — до червня 2026 року Квартира підпадає під державні програми: єОселя єВідновлення Без комісії для покупця! Телефонуйте — розповім деталі та організую перегляд.
МІТКА НА КАРТІ
ЗВʼЯЗОК З МЕНЕДЖЕРОМ
no pic
Юрій Швед
+380 (93) 257 78 10