Головна
Каталог
Квартири
Продам 3-кімнатну квартиру в ЖК Континент вул. Трускавецька
Продам 3-кімнатну квартиру в ЖК Континент вул. Трускавецька
1 / 15
$135 000
$1 467/м²
ID
393855
Тип квартири
Новобудова
К-сть кімнат
3
Площа
92.00м²
Площа кухні
20.00м²
Поверх
4/10
Стан
Зданий сирець
Район
Франківський
Вулиця
Трускавецька
Населений пункт
м. Львів
Забудовник
CONTINENT
ОПИС
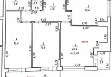
Продається простора 3-кімнатна квартира у сучасному житловому комплексі «Континент». Територія комплексу облаштована дитячими майданчиками та місцями для паркування. ЖК: Континент, 8 секція Поверх: 4/10 Загальна площа: 92м2 Будинок зданий в експлуатацію Планування: Просторі світлі кімнати з великими вікнами Місце під вбудовані шафи / гардероб Роздільний санвузол Велика кухня-студія з балконом Додатково спільний балкон на дві кімнати Технічний стан: Броньовані вхідні двері Стіни з керамоблоку, поштукатурені Стяжка на підлозі (окрім кухні та коридору) Лічильники на газ, воду та електроенергію Двоконтурний котел Система опалення з радіаторами Розведені труби водопостачання та каналізації Локація та інфраструктура: Зручне розташування — поруч ТРЦ Victoria Gardens, супермаркети, магазини, дитячий садок, навчальні заклади та зупинки громадського транспорту. Телефонуйте для детальної інформації та перегляду.
ЗВʼЯЗОК З МЕНЕДЖЕРОМ
no pic
Юрій Швед
+380 (93) 257 78 10