Головна
Каталог
Квартири
Продається велика 1-кімнатна квартира в Центрі.
Продається велика 1-кімнатна квартира в Центрі.
1 / 7
$33 900
$772/м²
ID
392569
Тип квартири
Новобудова
К-сть кімнат
1
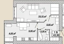
Площа
43.9м²
Площа кухні
14м²
Поверх
11/13
Стан
Сирець
Район
Центр
Вулиця
Княгинин
Населений пункт
м. Івано-Франківськ
Забудовник
Спілка забудівників
ЖК
Княгинин
ОПИС
Продаж гарної просторої квартири в ЖК Княгинин. Квартира простора та світла із заскленою лоджією на кухні, велика спальна кімната з гардеробом, коридор з місцем під шафу-купе. Розвинена власна інфраструктура: -підземний паркінг. -велика внутрішня територія з облаштованим дитячим та спортивним майданчиком. -відеоспостереження. -на території ЖК Торговий центр, супермаркет. В пішій доступності центральний ринок, Ратуша, школа, садочок і все необхідне.
МІТКА НА КАРТІ
ЗВʼЯЗОК З МЕНЕДЖЕРОМ
no pic
Володимир Заліський
+380 (96) 035 82 70