Головна
Каталог
Квартири
Елітна 3-кімнатна квартира у клубному будинку біля парку"Залізна Вода"
Елітна 3-кімнатна квартира у клубному будинку біля парку"Залізна Вода"
1 / 13
$194 810
$2 300/м²
ID
308454
Тип квартири
Новобудова
К-сть кімнат
2
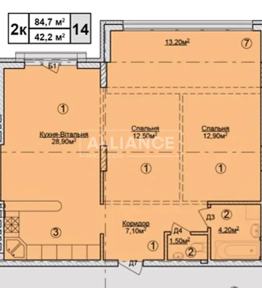
Площа
84.70м²
Площа кухні
28.90м²
Поверх
3/4
Стан
Зданий сирець
Район
Сихівський
Вулиця
Херсонська (Кибальчича)
Населений пункт
м. Львів
Забудовник
Інтергал-Буд
ОПИС
Продається простора 3-кімнатна квартира у клубному будинку Rezydencja «Zalizna Voda» — одному з найкомфортніших та найзатишніших житлових комплексів Львова. 📍 Локація: парк «Залізна вода», Сихівський район. 🏡 Площа: 84,7 м² 🪟 Поверх: 3/4 (без мансардних скосів) 💲 Ціна: 2300$/м² Про будинок: - клубний формат, малоквартирний комплекс - власний підземний паркінг, гаражні бокси - закрита територія з охороною та відеоспостереженням - консьєрж-сервіс - дизайнерські холи та безшумний ліфт - панорамні вікна, тераси, ландшафтний дизайн подвірʼя - дитячий майданчик, зони відпочинку, барбекю Локація та інфраструктура: - поруч парк «Залізна вода», Стрийський та Снопківський парки - школи, дитячі садки, університети — у пішій доступності - магазини та ринки: «Вопак», «Арсен», «Шувар» - 4 хв пішки до зупинки громадського транспорту - спортклуби та фітнес-центри неподалік Ідеальний варіант для тих, хто шукає сучасне житло у тихому зеленому районі з розвиненою інфраструктурою та високим рівнем безпеки. 📞 Дзвоніть, щоб домовитись про перегляд квартири!
ЗВʼЯЗОК З МЕНЕДЖЕРОМ
no pic
Наталя Рудюк
+380 (99) 731 79 98