Головна
Каталог
Квартири
Продаж 2к квартири з гарним плануванням та видом у ЖК Княгинин
Продаж 2к квартири з гарним плануванням та видом у ЖК Княгинин
1 / 9
$44 000
$695/м²
ID
216545
Тип квартири
Новобудова
К-сть кімнат
2
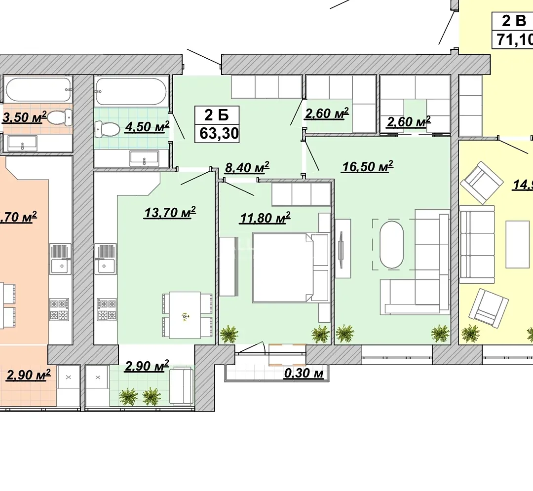
Площа
63.3м²
Площа кухні
16.2м²
Поверх
14/14
Стан
Сирець
Район
Княгинин
Вулиця
Княгинин
Населений пункт
м. Івано-Франківськ
Забудовник
Спілка забудівників
ЖК
Княгинин
ОПИС
Продається видова 2-кімнатна квартира в центральній частині міста. Квартира повноцінна не мансарда, розташована на 14-му поверсі 14-ти поверхового будинку, загальна площа 63.3 м.кв. Переваги Житлового комплексу: -розташування в центрі міста із зручною транспортною розвʼязкою. -якісне та сучасне будівництво. -просторі двори без автотранспорту. -дитячі та спортивні майданчики. -дворівневий підземний паркінг. -ландшафтний дизайн та відеонагляд. Поруч Торговий центр, школа, садочок та всі необхідні обʼєкти.
МІТКА НА КАРТІ
ЗВʼЯЗОК З МЕНЕДЖЕРОМ
Олег Клапків
+380 (50) 839 24 28