Головна
Каталог
Квартири
3-кімнатна квартира в районі Озера, ЖК Атмосфера
3-кімнатна квартира в районі Озера, ЖК Атмосфера
1 / 15
$70 500
$814/м²
ID
215358
Тип квартири
Новобудова
К-сть кімнат
3
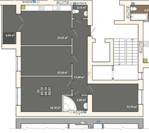
Площа
86.6м²
Площа кухні
18м²
Поверх
5/10
Стан
На здачі
Район
Озеро
Вулиця
Ленкавського
Населений пункт
м. Івано-Франківськ
Забудовник
Alliance Developer
ЖК
Атмосфера
ОПИС
Продається 3-кімнатна квартира в новобудові на вул. Ленкавського, поруч з міським озером. Квартира двостороння, світла та простора. Будинок на здачі, в кінці року можна буде робити ремонт. Основні характеристики: Поверх: 5-й з 10-ти Загальна площа: 86,6 м² Планування: просторе та функціональне Санвузол: роздільний Опалення: автономне газове. Будинок: цегляний, утеплений Інфраструктура: поруч магазини, школи, садочки, громадський транспорт, Озеро та Парк. Квартира ідеально підходить і для власного комфортного проживання, і як вигідна інвестиція під оренду.
МІТКА НА КАРТІ
ЗВʼЯЗОК З МЕНЕДЖЕРОМ
Юлія Нікітіна
+380 (50) 922 49 09